Community Work

The director of Moon A.C. Ltd, Stuart Collings is a supporter of community projects, and supported the Deptford Cinema and was instrumental in the building and project management of the cinema build with volunteer work.

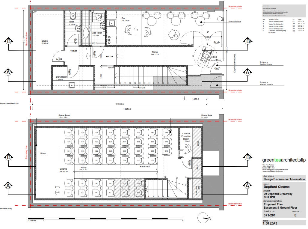
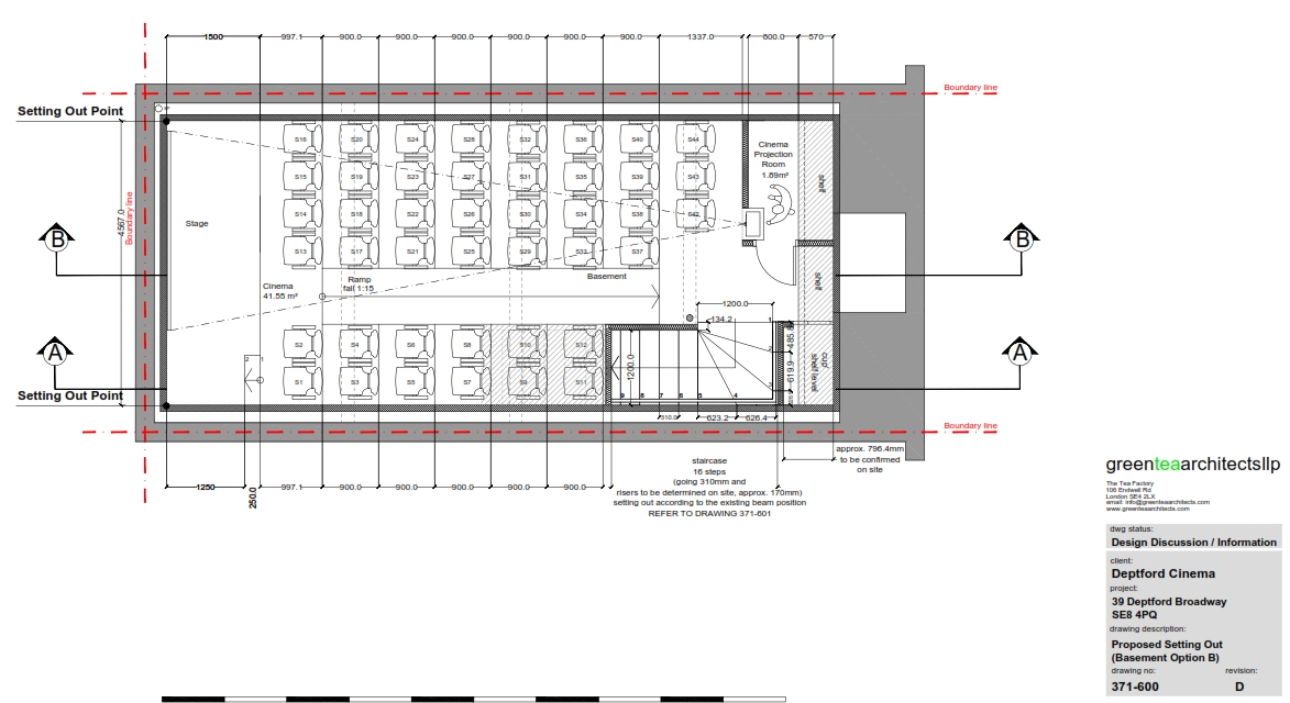
Deptford Cinema is a new, not-for-profit, volunteer-run cinema and will be the Borough of Lewisham’s only cinema.

Once fully completed the cinema will provide a 43 seat cinema space, a cafe/lounge area, studio and darkroom facilities for film processing and workshops and an exhibition gallery.

The cinema is open for screenings and private hire see www.deptfordcinema.org for more information.